Pages+from+PIER+17+FINAL+RENDER+PACKAGE-5+copy-converted-compressed.jpg

Exploratorium

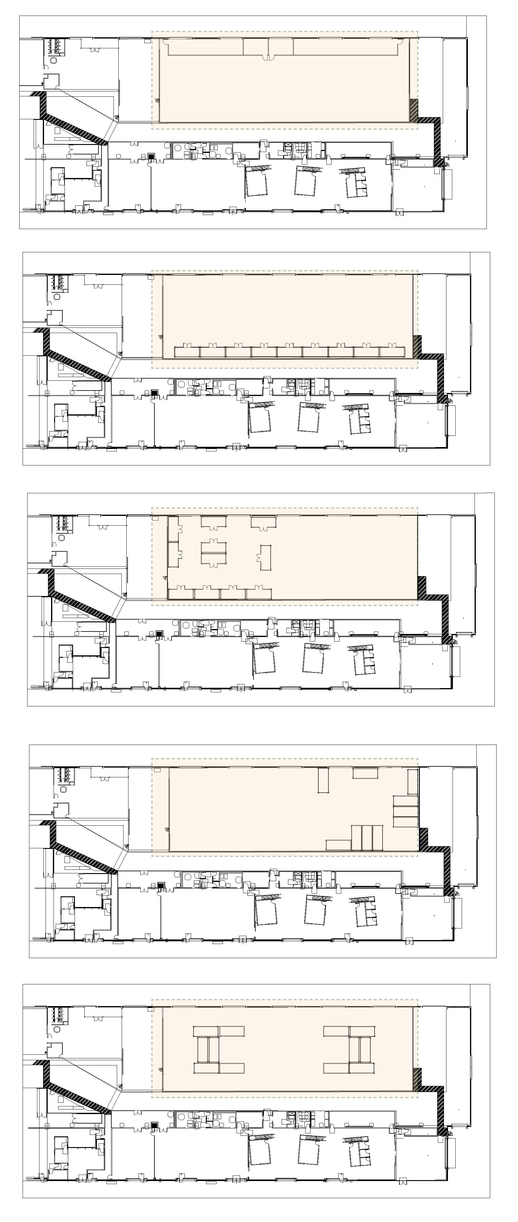
I presented several ideas and visual boards and some way-finding solutions to show the potential space utilization of Pier 17, suite 700. and developed the concept of the space being a type of robot lab/ tech office and produced a package of renders to help clients visualize the potential of the space.

Firm: Spatializing